NORTHAMPTONSHIRE County Council’s latest development site Buckton Fields Phase III is now on the market with estate agents Spicerhaart.
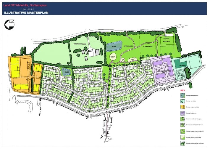
The site, situated between Boughton and Chapel Brampton, will bring several hundred new homes including affordable and private houses and apartments and a new local centre next to a new planned primary school. The outline planning permission also includes employment opportunities and the possibility of an elderly care facility.
Paul Quelch, Land Director at Spicerhaart, said: “I have personally negotiated around a dozen sales for the County Council over the years providing more than 1,000 homes including several hundred affordable homes, but I can say without reservation that this is the best yet.
“Situated in a popular area with private housing achieving strong values the site will undoubtedly attract strong bids to give NCC the best possible receipt. It will ensure, via section 106 agreements already signed, 35 per cent affordable housing and a significant cash injection for schools and highway among others.
“This site will add real value into the Northampton economy and provide much needed housing for the whole spectrum of occupiers.”
The site is described as a prime mixed-use development situated close to the attractive village of Boughton. Adding to Phase I & II that are under construction, this will complete the development with a primary school, convenient local shops, open parkland, play spaces, new employers and several hundred houses.
Interested parties should, in the first instance, contact Spicerhaart Land Director Paul Quelch by phone on 07860 618430 or email paul.quelch@spicerhaart.co.uk

